Wettbewerb Modularer Schulbau, Berlin
Standort
Bauherr
Gebäudetyp
BGF
Leistung
Zeitraum
Kooperation
Fachplaner
Modell
Team
Berlin
Land Berlin, vertreten durch die Berliner Immobilienmanagement GmbH (BIM)
Bildungsbau, Schule, 4-zügig, modular
15.000 m²
nicht offener Wettbewerb, 3. Rundgang
2018
in Zusammenarbeit mit Teisen Giesler Architekten, Luxemburg, Lisi Teisen, Rolf Giesler
POLA Landschaftsarchitekten Jörg Michel, Sara Perovic
schlaich bergermann partner, Boris Reyher
PIN-planende Ingenieure Norbert Müller
Eberl Pacan Brandschutzgutachter, David Niedermeiser
Monat und Menzel
Thomas Stadler, Martin Prenn, Dominik Schendel (STADLER PRENN ARCHITEKTEN)
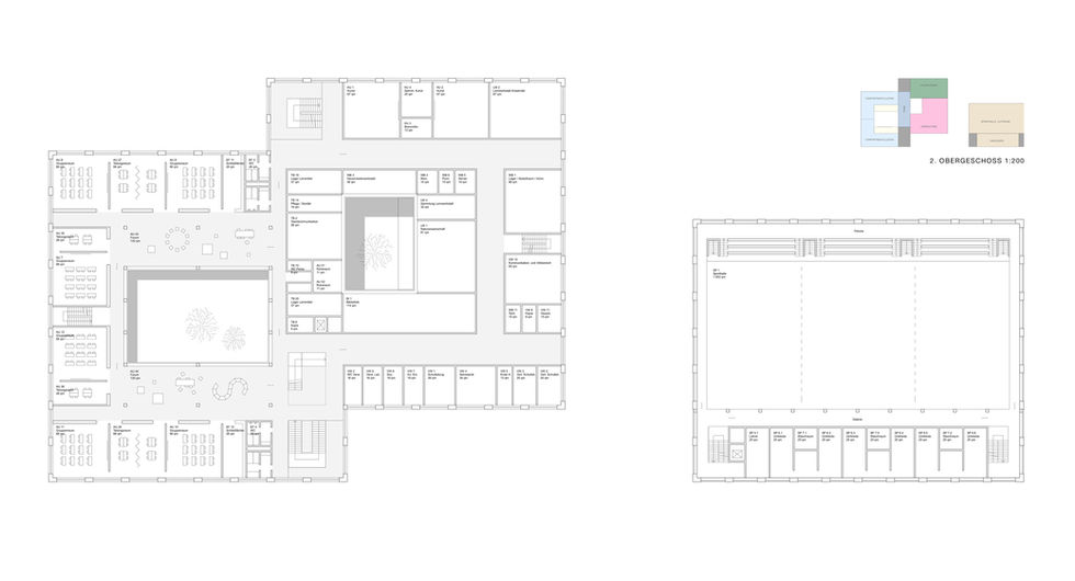
Ausgangspunkt des Entwurfs ist das Berliner Compartment-Konzept, das in eine klare Raumorganisation umgesetzt wird: Die drei allgemeinen Unterrichts- und Teilungsräume eines Clusters reihen sich um ein Forum, während die Cluster wiederum, zusammen mit dem Teambereich, um einen gemeinsamen Hof angeordnet sind. Diese Raumeinheit bietet eine optimale Umsetzung des ausgelobten Themas „Schule in der Schule“, indem der Hof eine vereinende Mitte ausbildet, zur Identitätsstiftung beiträgt und ausreichend Tageslicht in die Forumsbereiche bringt. Im dreigeschossigen Basisbaukörper organisieren sich je zwei Compartments auf einer Etage, so dass die 4 Compartments auf OG 1 und 2 verteilt sind. Im Erdgeschoss sind Fachraum-, Mehrzweck-, Verwaltungs- und Wirtschaftsbereich untergebracht, wodurch ein klarer Baukörper entsteht, der für die modulare Bauweise und aus energetischer Sicht optimal ist.
Der Bau aus Modulelementen wird in einer Holzhybridbauweise hergestellt. Tragende Stützen in Holz, Unterzüge in Holz im Verbund mit vorgefertigten Stahlbetonplatten, die vor Ort verschraubt und die Stöße mit Ortbeton vergossen werden. Die Außenfassade aus Infra-Leichtbeton übernimmt Trag- und Witterungsschutzfunktion. Die Fassadenausfachungen liegen zurückversetzt und sind in Holz ausgeführt.



















