STADTGESCHICHTS MUSEUM SCHWERIN
Standort
Bauherr
Gebäudetyp
BGF
Leistung
Zeitraum
Kooperation
Fachplanung
Team
Schlachtermarkt, Schwerin
Stadt Schwerin
Kulturbau
ca.4.300 m²
Wettbewerb, 1. Preis
2025
für JWA Jan Wiese Architekten
HPP (Brandschutz), Duschl Ingenieure (TGA), bloomimages (rendering), maquette (Modellbau)
Thomas Stadler, Axel Burkhard, Niklas Kelter, Ngoc Urbanek, Frithjof Meissner
Ein Museum für Schwerin
Ein Ort des kulturellen Gedächtnisses – ein Beitrag zur Stadt.
Der Neubau des Stadtmuseums in Schwerin versteht sich als zweifache Verpflichtung: Er bewahrt die Geschichte der Stadt und positioniert sich zugleich selbstbewusst im städtebaulichen Gefüge. Als Gefäß für Objekte, Narrative und kollektive Erinnerung wird das Museum zum öffentlichen Raum des Teilens, Lernens und Verstehens. Zugleich spricht es eine architektonische Sprache, die sich einfügt, ohne sich unterzuordnen – zeitgenössisch, zurückhaltend, aus dem Ort entwickelt.
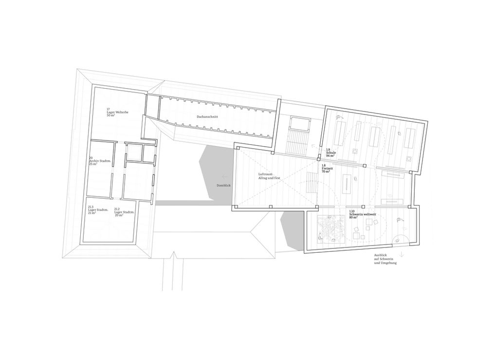
Der Museumsbaukörper entwickelt sich in seiner äußeren Form konsequent und gefühlvoll aus der Struktur des bestehenden Bestandsgebäudes und der Gebäudegeometrie der benachbarten Häuser. Markante Fassadenöffnungen verleihen ihm ein prägnantes Gesicht und machen neugierig auf den musealen Inhalt. Zugänge aus allen vier Himmelsrichtungen lassen das Gebäude offen und einladend wirken.
Der Höhenversprung zwischen Alt- und Neubau wird genutzt, um einen angenehmen Rundgang zu schaffen der mit einem eindrucksvollen Ausblick auf Schwerin und die umliegende Landschaft endet..
Der Neubau ergänzt das denkmalgeschützte Hauptgebäude in präziser Balance von Nähe und Distanz, definiert einen überdachten Hof als Herzstück und schafft mit klarer Adresse und durchlässiger Struktur einen Ort der Orientierung. Zwischen Alt und Neu entsteht ein gemeinsames Foyer, das alle Nutzungen verbindet und einen einfachen, barrierefreien Zugang schafft.
Die Tragstruktur – ein offenes Holzskelett – erlaubt maximale Flexibilität im Inneren. Eine monolithische Ziegelschale verleiht dem Baukörper Ruhe und Gewicht.
Der Bestand wird sorgfältig ertüchtigt, die historische Struktur freigelegt, neue Nutzungsspielräume entstehen im Raster des Tragwerks. Außen robust, innen wandelbar – das Museum bleibt in Betrieb und Haltung offen für künftige Veränderungen.




























